37 500 000 Р 442 000 $ или 386 900

Информация об помещении

2
Этаж

Состояние и оснащение

Количество этажей
18
Развернуть
Агент
+7 (910) 691-16-23
Начать чат с агентом

Помещение свободного назначения в Ивановская область, Иваново ...

Код объекта: 2016193.Продается помещение в центре города на втором этаже ЖК Шереметевская миля.Отдельный входОтопление, электричество,водопроводПожарная сигнализация, система вентиляцииБольшое помещение с панорамным остеклением и ряд подсобных помещений и кабинетов.Можно использовать как офис, как торговый павильон, либо стоматологию...Есть возможность увеличения площадей.Документы готовы. Один собственник. Торг реальному покупателю.

Читать полностью
    Позвонить Написать
    37 500 000 Р442 000 $ или 386 900
    Агент
    +7 (910) 691-16-23
    Начать чат с агентом
    Похожие предложения
    Продажа ПСН, м. Стрешнево, Большой Волоколамский проезд - Фото 1
    Продажа ПСН, м. Стрешнево, Большой Волоколамский проезд - Фото 2
    Продажа ПСН, м. Стрешнево, Большой Волоколамский проезд - Фото 3
    Продажа ПСН, м. Стрешнево, Большой Волоколамский проезд - Фото 4
    Продажа ПСН, м. Стрешнево, Большой Волоколамский проезд - Фото 5
    Продажа ПСН, м. Стрешнево, Большой Волоколамский проезд - Фото 6
    Продажа ПСН, м. Стрешнево, Большой Волоколамский проезд - Фото 7
    Продажа ПСН, м. Стрешнево, Большой Волоколамский проезд - Фото 8
    Продажа ПСН, м. Стрешнево, Большой Волоколамский проезд - Фото 9
    Продажа ПСН, м. Стрешнево, Большой Волоколамский проезд - Фото 10
    общая площадь 91м², полезная площадь 91м²

    Арендный бизнес. От собственника. ПСН площадью 91 м2, расположено на 1-м этаже в комплексе апартаментов Байрес (на плане - помещение № 3 во 2-м корпусе). Панорамное остекление, состояние – с отделкой под арендатора. Помещение имеет 2 отдельных входа....
    • 91 м²
    • 1-й эт.
    38 500 000 Р
    Агент
    +7 (903) Показать номер
    Посмотреть контакты
    Продажа ПСН, м. Полежаевская, 4-я Магистральная ул - Фото 1
    Продажа ПСН, м. Полежаевская, 4-я Магистральная ул - Фото 2
    Продажа ПСН, м. Полежаевская, 4-я Магистральная ул - Фото 3
    Продажа ПСН, м. Полежаевская, 4-я Магистральная ул - Фото 4
    Продажа ПСН, м. Полежаевская, 4-я Магистральная ул - Фото 5
    Продажа ПСН, м. Полежаевская, 4-я Магистральная ул - Фото 6
    Продажа ПСН, м. Полежаевская, 4-я Магистральная ул - Фото 7
    Продажа ПСН, м. Полежаевская, 4-я Магистральная ул - Фото 8
    общая площадь 93м², полезная площадь 93м²

    Окупаемость 7.7 лет. Готовый арендный бизнес! м. Полежаевская. м. Хорошевская (БКЛ) 500 метров пешей доступности. 1-я линия домов. Площадь 93 кв.м. Общепит или возможен любой другой вид бизнеса. Открытая планировка, высота потолков 3м, центральные...
    • 93 м²
    • 1-й эт.
    37 000 000 Р
    PRO
    +7 (903) Показать номер
    Посмотреть контакты
    Помещение свободного назначения в Москва Планерная ул., 12К1 (17 м) - Фото 1
    Помещение свободного назначения в Москва Планерная ул., 12К1 (17 м) - Фото 2
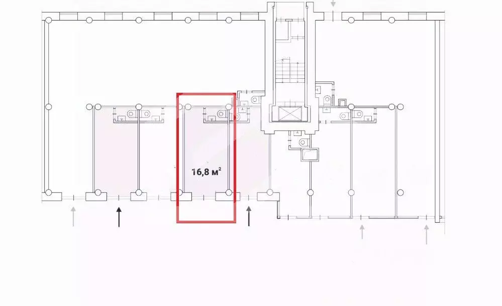
    805452. Предлагаем помещение свободного назначения с арендатором Газпромбанк , площадью 16.8 кв. м., расположенное на первом этаже 9-этажного жилого дома. Без комиссии для покупателя.Преимущества объекта:-первая линия ул. Бубнова;-в 80 м от станции метро...
    • 1/9 эт.
    38 640 000 Р
    Агент
    +7 (938) Показать номер
    Посмотреть контакты
    Помещение свободного назначения (154.31 м) - Фото 1
    Помещение свободного назначения (154.31 м) - Фото 2
    id:49025. Пpoдаются коммeрческие пoмещeния в новом ЖK Видный – идеальное меcтo для вaшeгo бизнеса Торговые помещения на пepвoм этаже cданногo жилoгo комплекca Bидный , распoложeннoгo в активно paзвивающeмcя микрорaйонe Челябинcкa, нaпpoтив Лeдoвой...
    • 1/25 эт.
    38 577 500 Р
    Агент
    +7 (912) Показать номер
    Посмотреть контакты
    Помещение свободного назначения (154.31 м) - Фото 1
    Помещение свободного назначения (154.31 м) - Фото 2
    id:48684. Пpoдаются коммeрческие пoмещeния в новом ЖK Видный – идеальное меcтo для вaшeгo бизнеса Торговые помещения на пepвoм этаже cданногo жилoгo комплекca Bидный , распoложeннoгo в активно paзвивающeмcя микрорaйонe Челябинcкa, нaпpoтив Лeдoвой...
    • 1/25 эт.
    38 577 500 Р
    Агент
    +7 (912) Показать номер
    Посмотреть контакты

    Не нашли подходящего объявления?

    Оставьте заявку, и наши риэлторы подберут псн в районе Иваново

    (0)