126 400 Р /в месяц 1 670 $ или 1 430

Информация об помещении

133 м2
Площадь

Состояние и оснащение

Общая площадь складского комплекса, м2
133
Развернуть
Агент
Екатерина Ермакова
+7 (915) 830-76-56
Начать чат с агентом

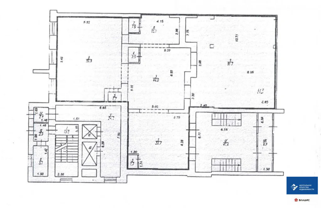
Аренда ПСН, Иваново, Ленина пр-кт.

Сдается здание в центре города. Территориально расположено: Ленина, 45 — Жиделева, 35.

Общая площадь — 133 м². Выполнена свободная планировка, что позволит организовать пространство в соответствии с вашими потребностями. Высота потолков — 3,8 м, что создаёт ощущение простора и свободы.

Здание новое, построено с использованием современных технологий. Есть своя скважина, электроснабжение — 50 кВт. Панорамные алюминиевые окна обеспечивают отличное естественное освещение и визуальную связь с окружающим пространством.

Установлено новое импортное отопление и тёплые полы по всей площади, что гарантирует комфорт в любое время года.

Перед зданием — крыльцо с примыкающей парковкой (новый асфальт) на 8 мест. Есть второй вход со двора с въездом через автоматические ворота и дополнительной парковкой. Также предусмотрена зона разгрузки со двора, что будет удобно для бизнеса.

Это отличная возможность арендовать функциональное и современное пространство для реализации ваших идей — будь то офис, магазин, салон или что-то другое.
Комиссия агентства оплачивается в размере 50% от месячной арендной платы при подписании договора .
***
Компания "АКЦЕНТ" - региональное агентство недвижимости,
более 15 лет занимает лидирующую позицию на рынке недвижимости нашего региона.

Высококвалифицированные эксперты проводят:
-- сделки любой сложности,
-- работаем со всеми видами сертификатов, материнским капиталом,
-- ипотечное кредитование от ведущих банков, обращаясь к нам 9 из 10 заемщиков получают положительное решение,
* все заявки на одобрение мы отправляем БЕСПЛАТНО,
-- мы с удовольствием подберем Вам объект в любом районе и в Ваш бюджет,
* так же есть варианты "для своих" из закрытой базы объектов,
-- с нами Вы продадите объект ДОРОЖЕ, мы учтем все особенности по сделке и налогообложению,
-- мы продаем НЕ ТОЛЬКО размещая объявления в интернете и ГЛАВНОЕ - мы не берем денег с продавца за рекламу объекта.

Сделайте свой ПРАВИЛЬНЫЙ выбор - приходите к нам!
С уважением КОМАНДА Компании "АКЦЕНТ".

***
Все, размещенные в данном объявлении, материалы (описание, цена, площади, визуальное оформление) не являются публичной офертой.

Читать полностью

    Для того, чтобы снять ПСН площадью 133 кв. метра по адресу: Иваново, Ленина пр-кт., 45, позвоните по телефону +7 (915) 830-76-56. Торопитесь! Объявление №901104840 об аренде ПСН площадью 133 кв. метра опубликовано Сегодня.

    Позвонить Написать
    126 400 Р /в месяц1 670 $ или 1 430
    Агент
    Екатерина Ермакова
    +7 (915) 830-76-56
    Начать чат с агентом
    Похожие предложения
    Помещение свободного назначения в Ивановская область, Иваново ул. ... - Фото 1
    Помещение свободного назначения в Ивановская область, Иваново ул. ... - Фото 2
    Сдаётся павильон в центре города, напротив госпиталя. Хорошее место для торговли выпечкой. Высокая проходимость.
    • 1/1 эт.
    10 000 Р
    Агент
    +7 (910) Показать номер
    Посмотреть контакты
    Помещение свободного назначения в Ивановская область, Иваново ул. 11-я ... - Фото 1
    Помещение свободного назначения в Ивановская область, Иваново ул. 11-я ... - Фото 2
    Код объекта: 1915122.Сдается в аренду офис площадью 18,7 кв.м, расположенный на 2 этаже кирпичного здания по адресу: 11 Сосневская, д.87- косметический ремонт- высокие потолки- подходит под юридический адрес- возможность расширения или аренды сдвоенного...
    • 2/3 эт.
    10 098 Р
    Агент
    +7 (910) Показать номер
    Посмотреть контакты
    Аренда ПСН, Рязань, ул. Есенина - Фото 1
    Аренда ПСН, Рязань, ул. Есенина - Фото 2
    Аренда ПСН, Рязань, ул. Есенина - Фото 3
    Аренда ПСН, Рязань, ул. Есенина - Фото 4
    Аренда ПСН, Рязань, ул. Есенина - Фото 5
    Аренда ПСН, Рязань, ул. Есенина - Фото 6
    Аренда ПСН, Рязань, ул. Есенина - Фото 7
    Аренда ПСН, Рязань, ул. Есенина - Фото 8
    Аренда ПСН, Рязань, ул. Есенина - Фото 9
    Аренда ПСН, Рязань, ул. Есенина - Фото 10
    Аренда ПСН, Рязань, ул. Есенина - Фото 11
    Аренда ПСН, Рязань, ул. Есенина - Фото 12
    Аренда ПСН, Рязань, ул. Есенина - Фото 13
    Аренда ПСН, Рязань, ул. Есенина - Фото 14
    общая площадь 255м², полезная площадь 255м²

    Код объекта: 2147859.Аренда коммерческого помещения в Рязани — идеальный выбор для вашего бизнеса! Предлагается в аренду помещение свободного назначения площадью 255 кв. м на первом этаже 15-этажного кирпичного здания по адресу: улица Есенина, 2А.Высота...
    • 255 м²
    • 1-й эт.
    255 000 Р /в месяц
    Агент
    +7 (491) Показать номер
    Посмотреть контакты
    Аренда ПСН, Рязань, 2-я Железнодорожная улица - Фото 1
    Аренда ПСН, Рязань, 2-я Железнодорожная улица - Фото 2
    Аренда ПСН, Рязань, 2-я Железнодорожная улица - Фото 3
    Аренда ПСН, Рязань, 2-я Железнодорожная улица - Фото 4
    общая площадь 60м², полезная площадь 60м²

    Код объекта: 2069829.Срочно сдаётся в аренду часть коммерческое помещения свободного назначения.Это идеальное место для бизнеса благодаря удобному расположению и отличной доступности. Помещение находится на первом этаже жилого дома.Отдельный вход и...
    • 60 м²
    • 1-й эт.
    60 000 Р /в месяц
    Агент
    +7 (491) Показать номер
    Посмотреть контакты
    Аренда ПСН, Рязань, ул. Есенина - Фото 1
    Аренда ПСН, Рязань, ул. Есенина - Фото 2
    Аренда ПСН, Рязань, ул. Есенина - Фото 3
    Аренда ПСН, Рязань, ул. Есенина - Фото 4
    Аренда ПСН, Рязань, ул. Есенина - Фото 5
    Аренда ПСН, Рязань, ул. Есенина - Фото 6
    Аренда ПСН, Рязань, ул. Есенина - Фото 7
    Аренда ПСН, Рязань, ул. Есенина - Фото 8
    Аренда ПСН, Рязань, ул. Есенина - Фото 9
    Аренда ПСН, Рязань, ул. Есенина - Фото 10
    Аренда ПСН, Рязань, ул. Есенина - Фото 11
    Аренда ПСН, Рязань, ул. Есенина - Фото 12
    Аренда ПСН, Рязань, ул. Есенина - Фото 13
    Аренда ПСН, Рязань, ул. Есенина - Фото 14
    общая площадь 74.6м², полезная площадь 74.6м²

    Код объекта: 1976758.Срочная аренда коммерческого помещения свободного назначения в Рязани! Предлагаем в аренду просторное и светлое помещение на улице Есенина, 53. Это идеальное место для вашего бизнеса благодаря удобному расположению и отличной доступности....
    • 74.6 м²
    • 1-й эт.
    70 000 Р /в месяц
    Агент
    +7 (491) Показать номер
    Посмотреть контакты

    Не нашли подходящего объявления?

    Оставьте заявку, и наши риэлторы подберут псн в районе Иваново

    (0)