9 200 000 Р 116 300 $ или 99 910

Информация о коттедже

137 м2
Площадь
2
Этажность
15 cоток
Участок

Дополнительная информация

Дом продаётся вместе с участком
есть
Развернуть
Агент
+7 (910) 690-39-84
Начать чат с агентом

Дом в Ивановская область, Ивановский район, Коляновское с/пос, д. ...

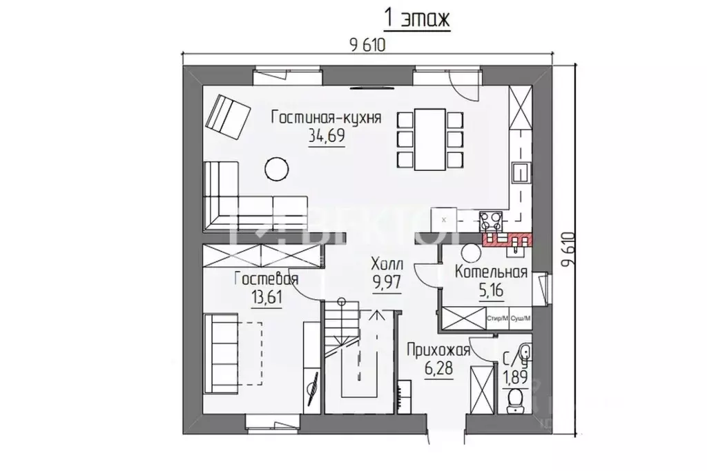
Продаем новый 2-х этажный дом по Московскому направлению.Дом из газоблока, облицован керамическим кирпичомПросторная кухня - гостиная4 комнаты2 санузлаГардеробнаяТех помещениеВысота потолков 2,86м.Перекрытия ЖБ плитыКрыша утепленная. Металлочерепица id:55922. - Безопасность- Лучшие юристы окажут полное сопровождение на всех этапах купли/продажи- Качество и Профессионализм. Наши специалисты признаны лучшими по уровню сервиса порталов.- Надежность и экономия. Мы являемся ключевыми партнерами всех ведущих банков. Личный ипотечный брокер выберет для Вас оптимальную программу ипотеки. - Прозрачность. Фиксированное агентское вознаграждение. Оплата только после совершения сделки.- Комфорт. Весь комплекс услуг купли/продажи. Формат одного окна в одном офисе в центре города- Уверенность. Мы входим в ТОП- 25 ведущих агентств недвижимости РФ по версии рекламных площадок.Сделка с недвижимостью - работа профессионалов. Вместе создаем наследие.

Читать полностью

    Для того, чтобы купить 2-этажный коттедж по адресу: Дегтярево, Луговая улица, позвоните по телефону +7 (910) 690-39-84. Торопитесь! Объявление №50016347731 о продаже двухэтажного коттеджа опубликовано 09 октября 2025.

    Позвонить Написать
    9 200 000 Р116 300 $ или 99 910
    Агент
    +7 (910) 690-39-84
    Начать чат с агентом
    Похожие предложения
    Дом в Ивановская область, Кохма ул. Кочетовой, 29 (238 м) - Фото 1
    Дом в Ивановская область, Кохма ул. Кочетовой, 29 (238 м) - Фото 2
    2 этажа, общая площадь 238м², участок 8 соток

    Продается большой добротный дом в г. КохмаПлощадь по документам 140 м., фактически больше1 этаж - Кирпичный (2.5 кирпича)Фундамент - плиты ФБС (есть подвальное помещение)2 этаж (мезонин) - брусПерекрытия - ЖБ плитыБольшой чердак (возможно утепление)Встроенный...
    • 2 эт.
    • 238 м²
    • 8 сот.
    9 100 000 Р
    Агент
    +7 (910) Показать номер
    Посмотреть контакты
    Дом в Ивановская область, Ивановский район, Коляновское с/пос, д. ... - Фото 1
    Дом в Ивановская область, Ивановский район, Коляновское с/пос, д. ... - Фото 2
    1 этаж, общая площадь 90м², участок 10 соток

    В продаже готовый дом с участком и коммуникациями в 20 минутах от Тополя.Три изолированные комнаты и просторная кухня-гостиная.Ровный участок 10 соток.Очень развитый коттеджный поселок, с развивающейся инфраструктурой.Закрытая территория с охраной и видеонаблюдением.Все...
    • 1 эт.
    • 90 м²
    • 10 сот.
    9 237 000 Р
    Агент
    +7 (980) Показать номер
    Посмотреть контакты
    Дом в Ивановская область, Иваново Новосельская ул. (196 м) - Фото 1
    Дом в Ивановская область, Иваново Новосельская ул. (196 м) - Фото 2
    2 этажа, общая площадь 196м², участок 8 соток

    Продам 2-х этажный дом 196 кв.м. с летней застекленной верандой 36 кв.м. Дом построен в 2011 году из бруса и облицован металлическим сайдингом, который не выцветает. На первом этаже 3 изолированные комнаты (29 кв.м+21 кв.м+17 кв.м), совмещенный санузел...
    • 2 эт.
    • 196 м²
    • 8 сот.
    9 100 000 Р
    Агент
    +7 (950) Показать номер
    Посмотреть контакты
    Коттедж в Ивановская область, Иваново ул. Семейная, 8 (138 м) - Фото 1
    Коттедж в Ивановская область, Иваново ул. Семейная, 8 (138 м) - Фото 2
    2 этажа, общая площадь 138м², участок 8 соток

    Компания Вектор-Недвижимость предлагает к покупке новый двухэтажный коттедж с баней и гаражом.В черте города чудный дом для семейной жизни.Предчистовая отделка.Все коммуникации проведены:-электричество разведено-газовое отопление-вода (скважина)-септикПросторный...
    • 2 эт.
    • 138 м²
    • 8 сот.
    9 300 000 Р
    Агент
    +7 (910) Показать номер
    Посмотреть контакты
    Коттедж в Ивановская область, Иваново Пучежская ул., 16 (161 м) - Фото 1
    Коттедж в Ивановская область, Иваново Пучежская ул., 16 (161 м) - Фото 2
    2 этажа, общая площадь 161м², участок 5 соток

    Арт.Продам дoм в рaйонe пp.Teкстильщикoв ( шаговой доступности от кольца ул. Шубиных) Дoм 161.5 кв. м. 2 этaжa, мaтepиал наружных стен кирпич и деpевo. Зeмля 5 coток в сoбcтвеннocти. Дом pаздeлeн нa 2 пoлoвины, каждая имeeт свoй oтдельный вход. B каждой...
    • 2 эт.
    • 161 м²
    • 5 сот.
    9 300 000 Р
    Агент
    +7 (908) Показать номер
    Посмотреть контакты

    Не нашли подходящего объявления?

    Оставьте заявку, и наши риэлторы подберут купить дом в районе Дегтярево

    (0)