16 999 000 Р 215 600 $ или 185 300

Информация о коттедже

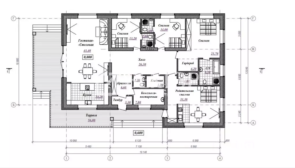
246 м2
Площадь
1
Этажность
11 cоток
Участок

Дополнительная информация

Дом продаётся вместе с участком
есть
Развернуть
Агент
+7 (910) 990-67-99
Начать чат с агентом

Дом в Ивановская область, Ивановский район, Коляновское с/пос, д. ...

В продаже дом по индивидуальному проекту ЭКСКЛЮЗИВНОЕ ПРЕДЛОЖЕНИЕ Готов к отделке Фасадный материал заказан согласно дизайн проекту.Ожидается доставка в сентябре и будем приступать к отделке.Детально продуманная планировка:-Общая площадь 246 м2-Большая кухня-гостиная-57,6 м2, выход на террасу с панорамным остеклением-2 изолированные спальни со своими санузлами -2 спальни с санузлом и гардеробной-просторная прихожая с гостевым санузлом-котельная-прачечнаяО коммуникациях:-в санузлах установлены инсталляции,-подведены все коммуникации,-установлен теплый пол во всем доме-просторная терраса с выходами на разные стороныУчасток:-площадь участка 11 сотокПрямоугольная форма и правильное расположение дома на участке На текущий момент произведена отмостка дома, а также приступили к облицовке.Для дома есть дизайн проект от ведущей компании и бригада профессионалов, готовых приступить к работе id:43639. - Безопасность- Лучшие юристы окажут полное сопровождение на всех этапах купли/продажи- Качество и Профессионализм. Наши специалисты признаны лучшими по уровню сервиса порталов.- Надежность и экономия. Мы являемся ключевыми партнерами всех ведущих банков. Личный ипотечный брокер выберет для Вас оптимальную программу ипотеки. - Прозрачность. Фиксированное агентское вознаграждение. Оплата только после совершения сделки.- Комфорт. Весь комплекс услуг купли/продажи. Формат одного окна в одном офисе в центре города- Уверенность. Мы входим в ТОП- 25 ведущих агентств недвижимости РФ по версии рекламных площадок.Сделка с недвижимостью - работа профессионалов. Вместе создаем наследие.

Читать полностью

    Для того, чтобы купить 1-этажный коттедж по адресу: Жуково, Восточная улица, 5, позвоните по телефону +7 (910) 990-67-99. Торопитесь! Объявление №50016425703 о продаже одноэтажного коттеджа опубликовано 08 октября 2025.

    Позвонить Написать
    16 999 000 Р215 600 $ или 185 300
    Агент
    +7 (910) 990-67-99
    Начать чат с агентом
    Похожие предложения
    Дом в Ивановская область, Ивановский район, Беляницкое с/пос, д. ... - Фото 1
    Дом в Ивановская область, Ивановский район, Беляницкое с/пос, д. ... - Фото 2
    1 этаж, общая площадь 163м², участок 10 соток

    Лот:3605. Подходит СЕЛЬСКАЯ, СЕМЕЙНАЯ ИПОТЕКА, IT-ИПОТЕКА, ВОЕННАЯ ИПОТЕКА.Агентство недвижимости Радуга предлагает к продаже эксклюзивный коттедж 2024 года постройки со всеми необходимыми коммуникациями в предчистовой отделке. В стоимость входит стяжка,...
    • 1 эт.
    • 163 м²
    • 10 сот.
    16 000 000 Р
    Агент
    +7 (980) Показать номер
    Посмотреть контакты
    Коттедж в Ивановская область, Ивановский район, Беляницкое с/пос, д. ... - Фото 1
    Коттедж в Ивановская область, Ивановский район, Беляницкое с/пос, д. ... - Фото 2
    2 этажа, общая площадь 242м², участок 20 соток

    Лот:5168. Агентство недвижимости Радуга предлагает к приобретению просторный, новый жилой дом, расположенный по адресу: Ивановская область, Ивановский район, д. Крюково, ул. Благодатная.На земельном участке, 2000 кв.м. построено два дома:1 дом - 121,5...
    • 2 эт.
    • 242 м²
    • 20 сот.
    16 200 000 Р
    Агент
    +7 (980) Показать номер
    Посмотреть контакты
    Коттедж в Ивановская область, Ивановский район, Богородское с/пос, д. ... - Фото 1
    Коттедж в Ивановская область, Ивановский район, Богородское с/пос, д. ... - Фото 2
    3 этажа, общая площадь 320м², участок 14 соток

    Лот:3655. Агентство недвижимости Радуга предлагает к продаже отличный качественный коттедж площадью 320 кв.м., расположенный в д. Афанасово, ул. 2-я Продольная, 9.Год постройки - 2016 г.Фундамент: блоки ФБС. Материал стен кирпич + 100 мм утеплительДом...
    • 3 эт.
    • 320 м²
    • 14 сот.
    16 500 000 Р
    Агент
    +7 (980) Показать номер
    Посмотреть контакты
    Дом в Ивановская область, Ивановский район, Беляницкое с/пос, д. ... - Фото 1
    Дом в Ивановская область, Ивановский район, Беляницкое с/пос, д. ... - Фото 2
    1 этаж, общая площадь 132м², участок 10 соток

    Лот:4769. Агентство недвижимости Радуга предлагает к приобретению роскошный жилой комплекс в тихом районе недалеко от городской инфраструктуры, сочетающий в себе высокое качество строительства и гармонию с природой.Ключевые особенности:- Экологическая...
    • 1 эт.
    • 132 м²
    • 10 сот.
    16 400 000 Р
    Агент
    +7 (910) Показать номер
    Посмотреть контакты
    Дом в Ивановская область, Ивановский район, Богородское с/пос, д. ... - Фото 1
    Дом в Ивановская область, Ивановский район, Богородское с/пос, д. ... - Фото 2
    2 этажа, общая площадь 164м², участок 10 соток

    Код объекта: 1382829. Купите современный новый дом.Место с хорошо развитой улично-дорожной сетью, близко от остановок общественного транспорта.Дом построен- из керамических блоков Wiеnеrbеrgеr Роrоthеrm 44 по фасаду облицован кирпичом, - свайный фундамент...
    • 2 эт.
    • 164 м²
    • 10 сот.
    16 550 000 Р
    Агент
    +7 (910) Показать номер
    Посмотреть контакты

    Не нашли подходящего объявления?

    Оставьте заявку, и наши риэлторы подберут купить дом в районе Жуково

    (0)